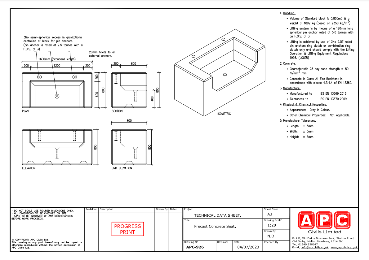
1. Handling
– Volume of Standard block is 1.105m³ & a weight of 2400kg (based on 2350kg/m³)
– Lifting system is by means of a 180mm long spherical pin anchor rated at 5.0 tonnes with an F.O.S. of 3
– Lifting is achieved by use of 2No 2.51 rated pin anchors ring clutch or combination ring clutch only and should comply with the Lifting Operation & Lifting Equipment Regulations 1998 (LOLER)
2. Concrete
– Characteristic 28 day cube strength = 50 N/mm² min.
– Concrete is Class A1 Fire Resistant in accordance with clause 4.3.4.4 of EN 13369
3. Manufacture
– Manufactured to BS EN 13369:2013
– Tolerances to BS EN 13670:2009
4. Physical & Chemical Properties
– Appearance: Grey in Colour
– Other Chemical Properties: Not Applicable
5. Manufacture Tolerances
– Length: ± 5mm
– Width: ± 5mm
– Height: ± 5mm

















